Matériels Cuisine : Votre fournisseur de matériel de cuisine professionnelle

VOTRE SPÉCIALISTE DE L'ÉQUIPEMENT CHR EN LIGNE
SPÉCIALISTE DE LA VENTE DEMATÉRIELS DE CUISINE PROFESSIONNEL
FINANCEMENT POSSIBLE *ACHETEZ MAINTENANT, PAYEZ PLUS TARD* Nous contacter

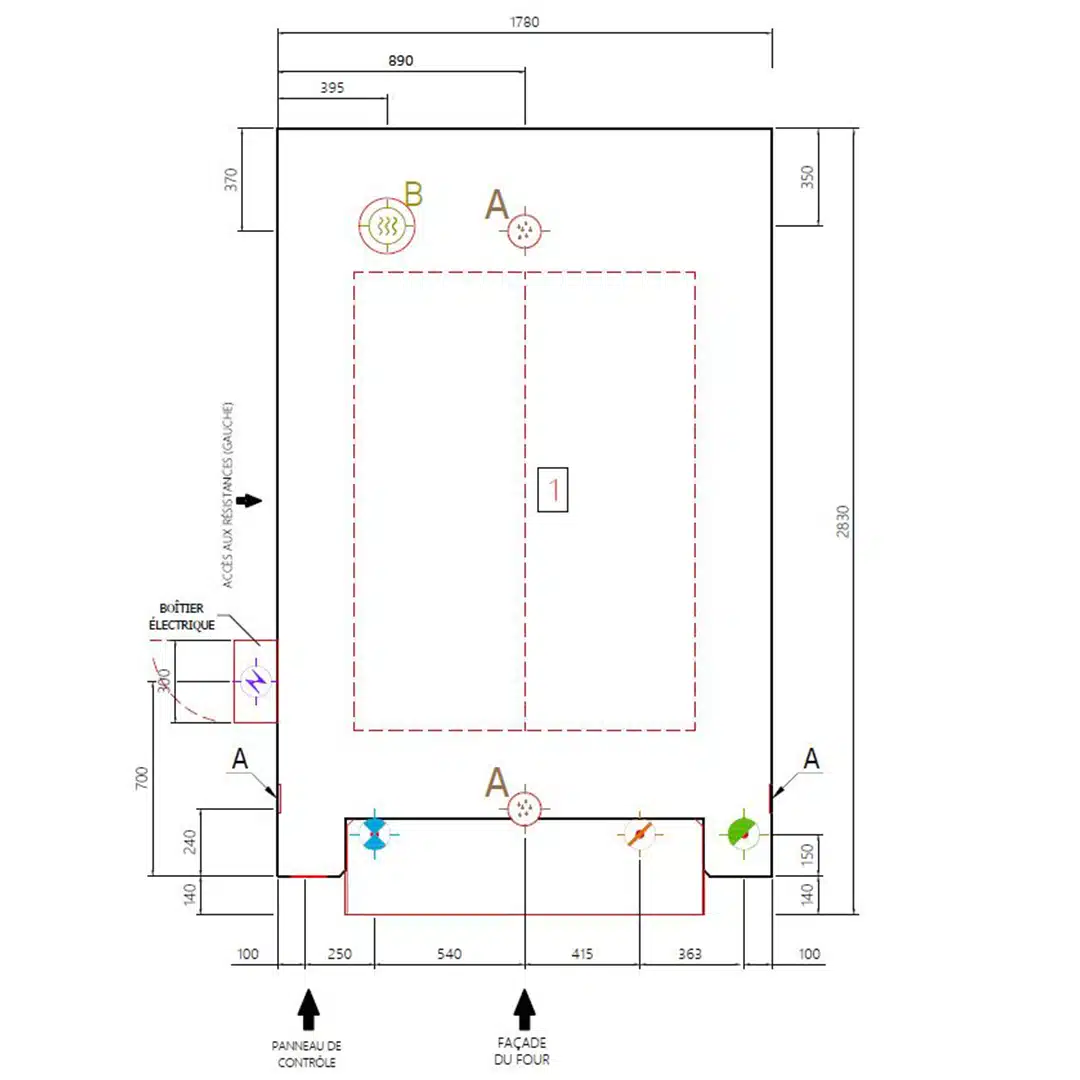
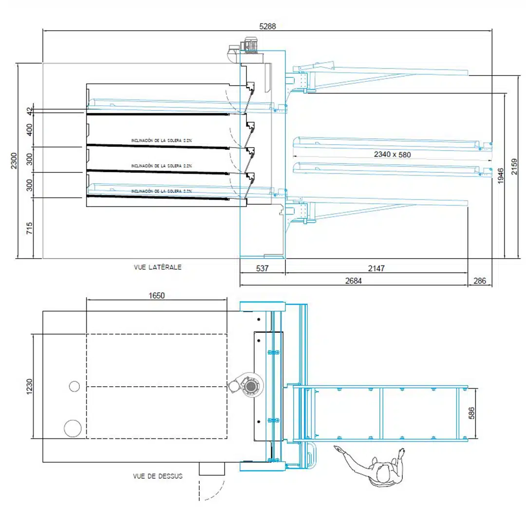
Four Modulec 4 étages 24/24/24/31cm 2 portes L 615 x P 1650 mm 8m2

47,684.84 HT
57,221.81 TTC

Le four Modulec 4 étages est l’investissement idéal pour les professionnels de la restauration qui recherchent un équipement polyvalent. Il vous permettra de réaliser une grande variété de plats, du plus simple au plus élaboré, avec une qualité .

En stock

UGS : AFMC4BBBC261165-156 Catégories : , ,

Description

Four professionnel modulec 4 étages : Polyvalence et performance au cœur de votre cuisine

Conçu pour répondre aux exigences des professionnels de la restauration, le four Modulec 4 étages est un équipement de cuisson polyvalent et robuste. Il offre une capacité de production élevée et une flexibilité d’utilisation inégalée, tout en garantissant une cuisson précise et uniforme.

Caractéristiques clés du four professionnel modulec 4 étages:

  • Polyvalence extrême: Grâce à sa configuration modulaire et à ses différents modes de cuisson (rayonnement, électrique), il s’adapte à une large gamme de produits et de recettes.
  • Capacité élevée: Les 4 étages permettent de cuire de grandes quantités d’aliments simultanément, optimisant ainsi votre productivité.
  • Construction robuste: Fabriqué avec des matériaux de qualité, le four Modulec est conçu pour une utilisation intensive et une longue durée de vie.
  • Ergonomie: Le pont élévateur intégré et le déplacement vertical manuel facilitent le chargement et le déchargement des plats, réduisant ainsi la fatigue de l’utilisateur.
  • Contrôle précis: La commande tactile 7 pouces et l’afficheur numérique permettent un réglage précis de la température et une programmation simple des cycles de cuisson.

Les avantages:

  • Flexibilité: Adaptez-vous à tous les types de cuisine et de menus.
  • Efficacité: Optimisez votre productivité grâce à une capacité de production élevée.
  • Précision: Obtenez des résultats de cuisson parfaits grâce à un contrôle précis de la température.
  • Durabilité: Bénéficiez d’un équipement robuste et fiable pour les années à venir.
  • Ergonomie: Facilitez le travail de vos équipes grâce à une conception ergonomique.

Les atouts techniques en détail :

  • Brûleur diesel/gasoil : Pour une cuisson traditionnelle et authentique.
  • Chambre supérieure électrique: Pour une cuisson plus rapide et plus précise.
  • Résistances côté gauche: Pour une répartition homogène de la chaleur.
  • Hotte reculée: Pour une meilleure extraction des fumées et des odeurs.
  • Commande tactile 7 pouces: Pour une interface intuitive et facile à utiliser.
  • Pont élévateur intégré: Pour faciliter le chargement et le déchargement des plats.

En choisissant le four Modulec, vous investissez dans un outil de cuisson de haute qualité qui vous accompagnera dans toutes vos créations culinaires.

Informations complémentaires

Tension